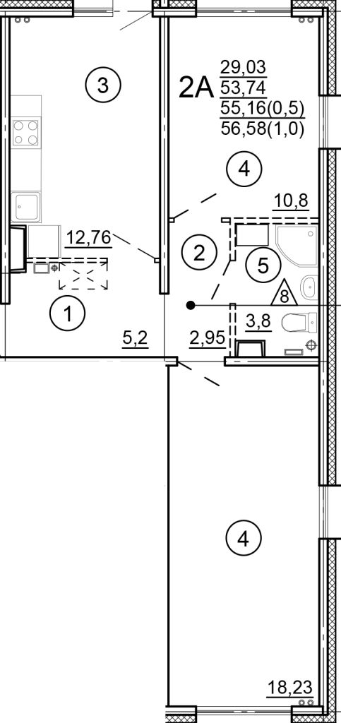
Продажа 2-комнатной квартиры 56.58 м2, улица Новочеркасская 49, Тверь

5 069 780
89 604 ₽ / кв.м.
07 октября 2025
1 / 9
Адрес Тверь, Заволжский район, ул. Новочеркасская, 49
Количество комнат 2 – комнатная
Площадь (кв.м.) Общая: 56.58 Жилая: 29 Кухня: 13 56.58 / 29 / 13
Этаж 15 из 18
Дом Панельный
Санузел совмещенный
Планировка изолированная
Состояние евроремонт
Отопление Автономное (котельная)
Балкон / лоджия 1 балкон
Грузовой лифт есть

Продаю 2х комнатную квартиру в уникальном месте, где сосновый бор встречается с собственной прогулочной набережной реки Волги. Чистый воздух и красивая природа!

Квартира с евроремонтом!

На стенах штукатурка светлых тонов, ламинат на полу, окна ПВХ. 

Совмещенный санузел – это дополнительное место для стиральной машины и шкафов, выложен плиткой, установлена новая сантехника.  Установлены счетчики на воду.

Дверь входная хорошая. 

Благоустроенная территория во дворе дома с детскими, спортивными площадками и местами для отдыха, прогулочная набережная, лес с грибами и ягодами.

На доме установлена система видеонаблюдения «Безопасный город».

Дорога вымощена брусчаткой, большая парковка – место есть всегда!

На территории комплекса есть магазины, аптеки, пункты выдачи интернет магазинов, салоны красоты.                                                                                                                                             

Остановка автобуса  маршрута №3 «Транспорт Верхневолжья» в трех минутах ходьбы.

Звоните и поехали смотреть!!!

 

Елизарова Юлия Валерьевна
elizarova.tr@gmail.com
Агентство недвижимости: ЦН Тверской регион
г. Тверь, пр-т Чайковского, д. 29, этаж 4, офис 20
nemchenko.tr@gmail.com
Все предложения этого агентства