Продажа 2-комнатной квартиры 56.58 м2, улица Новочеркасская 48, Тверь

5 402 471
95 484 ₽ / кв.м.
07 октября 2025
1 / 9
Адрес Тверь, Заволжский район, ул. Новочеркасская, 48
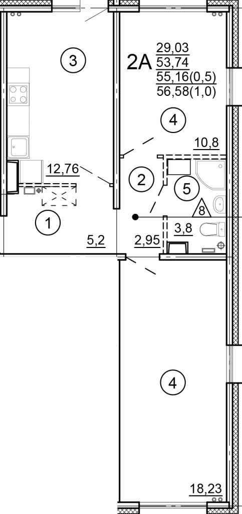
Количество комнат 2 – комнатная
Площадь (кв.м.) Общая: 56.58 Жилая: 30 Кухня: 13 56.58 / 30 / 13
Этаж 3 из 18
Дом Панельный
Санузел раздельный
Планировка изолированная
Состояние евроремонт
Отопление Автономное (котельная)
Балкон / лоджия 1 балкон
Грузовой лифт есть

Продаю 2х комнатную квартиру в уникальном месте, где сосновый бор встречается с собственной прогулочной набережной реки Волги. Чистый воздух и красивая природа!

Квартира с евроремонтом!

На стенах штукатурка светлых тонов, ламинат на полу, окна ПВХ. 

Совмещенный санузел – это дополнительное место для стиральной машины и шкафов, выложен плиткой, установлена новая сантехника.  Установлены счетчики на воду.

Дверь входная хорошая. 

Благоустроенная территория во дворе дома с детскими, спортивными площадками и местами для отдыха, прогулочная набережная, лес с грибами и ягодами.

  На доме установлена система видеонаблюдения «Безопасный город».

  Дорога вымощена брусчаткой, большая парковка – место есть всегда!

  На территории комплекса есть магазины, аптеки, пункты выдачи интернет магазинов, салоны красоты.                                                                                                                                             

Остановка автобуса  маршрута №3 «Транспорт Верхневолжья» в трех минутах ходьбы.

Звоните и поехали смотреть!!!

 

Елизарова Юлия Валерьевна
elizarova.tr@gmail.com
Агентство недвижимости: ЦН Тверской регион
г. Тверь, пр-т Чайковского, д. 29, этаж 4, офис 20
nemchenko.tr@gmail.com
Все предложения этого агентства