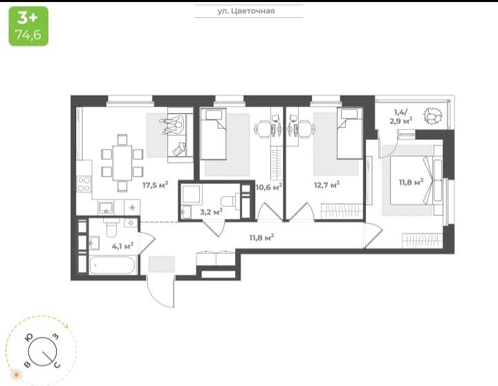
Продажа 3-комнатной квартиры в новостройке 73.1 м2, улица Цветочная, Тверь

8 727 700
119 394 ₽ / кв.м.
Сегодня, 15:28
1 / 5
Адрес Тверь, Заволжский район, ул. Цветочная
Количество комнат 3 – комнатная
Площадь (кв.м.) Общая: 73.1 Жилая: 36 Кухня: 18 73.1 / 36 / 18
Этаж 10 из 16
Дом Монолитно-кирпичный
Санузел раздельный
Планировка изолированная
Отделка Чистовая отделка
Отопление Автономное (котельная)
Балкон / лоджия 1 лоджия
Грузовой лифт есть

Продаю 3х комнатную   квартиру с большой кухней-гостиной   в новостройке, в Заволжском районе.

Технология строительства дома  - монолитно-кирпичная. Фасад   дома отделан металлической плиткой под кирпич.

В квартире стены с гипсовой штукатуркой, санузел с черновой.

Панорамные окна - много света!

Выполнена стяжка пола. Горизонтальная разводка отопления - стояков нет, залита стяжка с шумоизоляцией.   Отопление с регулятором температуры, который позволит создать комфортный климат в квартире. 

Установлены счетчики на холодную и горячую воду, отопление, поэтому вы сможете существенно экономить на коммунальных платежах.   Санузел совмещен, есть место под стиральную машинку.

Кабель интернет- подключения и телевидения заведен в квартиру. Выполнена разводка электрики.

Входная металлическая  дверь  хорошего качества.    

Дизайнерские подъезды с просторными колясочными, безбарьерная среда, удобно заходить с   детскими колясками. Входить в подъезд можно с улицы и со двора.

В закрытом дворе (двор без машин делает отдых безопасным) современные детские площадки, спортивные площадки для игр в футбол и баскетбол, спортивные тренажеры, зоны эко – релакса, чтобы устроить пикник на траве или заняться йогой, велодорожки для любителей прокатиться с ветерком, не мешая пешеходам. 

На первом этаже дома располагаются   магазины, аптеки, салоны красоты, кафе. 

Большая   парковка снаружи дома – место есть всегда! 

Управляющая компания в жилом комплексе. 

В шаговой доступности детский сад, школа, фитнес – клуб, бассейн Парус, ТвГУ, детская поликлиника, сетевые магазины, остановка городского транспорта, маршруты автобусов №7,44,55,56.

  Звоните и поехали смотреть!!!!!

 

Елизарова Юлия Валерьевна
elizarova.tr@gmail.com
Агентство недвижимости: ЦН Тверской регион
г. Тверь, пр-т Чайковского, д. 29, этаж 4, офис 20
nemchenko.tr@gmail.com
Все предложения этого агентства