Продажа 2-комнатной квартиры 42.1 м2, Афанасия Никитина набережная 80, Тверь

3 799 020
90 238 ₽ / кв.м.
Сегодня, 14:10
1 / 24
Адрес Тверь, Заволжский район, наб. Афанасия Никитина, 80
Количество комнат 2 – комнатная
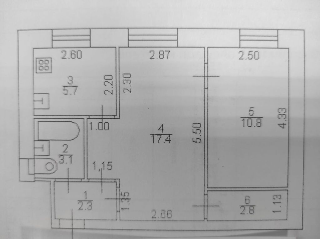
Площадь (кв.м.) Общая: 42.1 Жилая: 28.2 Кухня: 5.7 Комнаты: 17.4+10.8 42.1 / 28.2 / 5.7
Этаж 1 из 5
Дом Кирпичный
Санузел совмещенный
Планировка смежная
Состояние косметический ремонт
Отопление Центральное
Газ есть

Квартира в БЛИЖНЕМ ЗАВОЛЖЬЕ города Твери. Юридически готова к продаже. мат. капитал, ипотека. Никто не прописан, более пяти лет в собственности. Два взрослых собственника. Дом 1965г. Быстрый выход в сделку. ЗВОНИТЕ
Двухкомнатная квартира "Хрущевка", смежные комнаты и совмещенный с/у, в Заволжском районе наб. Афанасия Никитина 80.
Квартира расположена на 1- этаже 5-этажного кирпичного дома. Общая площадь 42.1 кв.м, жилая 28.2 кв.м, комнаты 17.4/10.8 кв.м, кухня 5.7 кв.м, С/У совмещенный, высота потолка 2.5 м.
В квартире сделан качественный ремонт, ровный крашенный потолок, выровненные с новыми обоями стены, на полу ламинат , все окна пластиковые, поменяны коммуникации ( трубы полипропилен), хорошая сантехника, современные межкомнатные двери, металлическая входная дверь.
Чистый подъезд , доброжелательные соседи, тихий двор с детской площадкой, имеется парковка.
Это жилье можно рассматривать как готовый бизнес с приличным доходом.
Тихий уютный спальный район. Отличная транспортная доступность. Два взрослых собственника, никто не прописан, более пяти лет. Квартира юридически полностью готова к продаже.

Осипов Сергей Эдуардович
osipov.tr@gmail.com
Агентство недвижимости: ЦН Тверской регион
г. Тверь, пр-т Чайковского, д. 29, этаж 4, офис 20
nemchenko.tr@gmail.com
Все предложения этого агентства