Продажа 3-комнатной квартиры 61.7 м2, улица Бобкова 26к6, Тверь

3 700 000
59 968 ₽ / кв.м.
Сегодня, 14:29
1 / 22
Адрес Тверь, Пролетарский район, ул. Бобкова, 26к6
Количество комнат 3 – комнатная
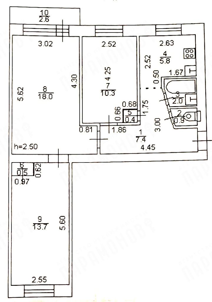
Площадь (кв.м.) Общая: 61.7 Жилая: 42 Кухня: 6 61.7 / 42 / 6
Этаж 3 из 5
Дом Кирпичный
Состояние хорошее
Отопление Центральное
Балкон / лоджия 1 балкон

Очень теплая, светлая, не угловая квартира на среднем этаже кирпичного дома.

Общая площадь 61,7 кв.м., три комнаты 18, 10 и 14 кв.м., кухня 5,8 кв.м.

Квартира в обычном, жилом состоянии. Застекленный балкон.
Окна выходят на две стороны.
Отличное месторасположение дома: не на проезжей части, вся инфраструктура в шаговой доступности. Хорошее транспортное сообщение. С парковкой проблем нет, всегда есть свободные места.
Вблизи от дома набережная р. Волга, отличное место для пеших прогулок, а также рыбалки!

Чистая продажа.
ЗВОНИТЕ-ответим на все ваши вопросы. Оперативно организуем показ.

Дорогова Эля Вагифовна
elka-pantera@yandex.ru
Агентство недвижимости: Агентство недвижимости "ПАРАМОНОВ"
Симеоновская ул., 39, ДЦ
Все предложения этого агентства